Ремонт квартир Ремонт под ключ в Сочи, Косметический ремонт, Дизайнерский ремонт, Отдельные виды работ (сантехника, электрика и т.д.), Натяжные потолки, Кухни и мебель под заказ, Кондиционеры
Перед тем как осуществлять капитальный ремонт или начинать строительство нового помещения, следует сразу подумать про его внутренний облик и разработать дизайн проект. Сейчас всё больше людей предпочитает использовать услуги дизайнеров, которые составляют специальные дизайн-проекты для различных помещений.
Зачем нужен дизайн проект?
детальный расчет требуемых расходов, выбор отделочных материалов
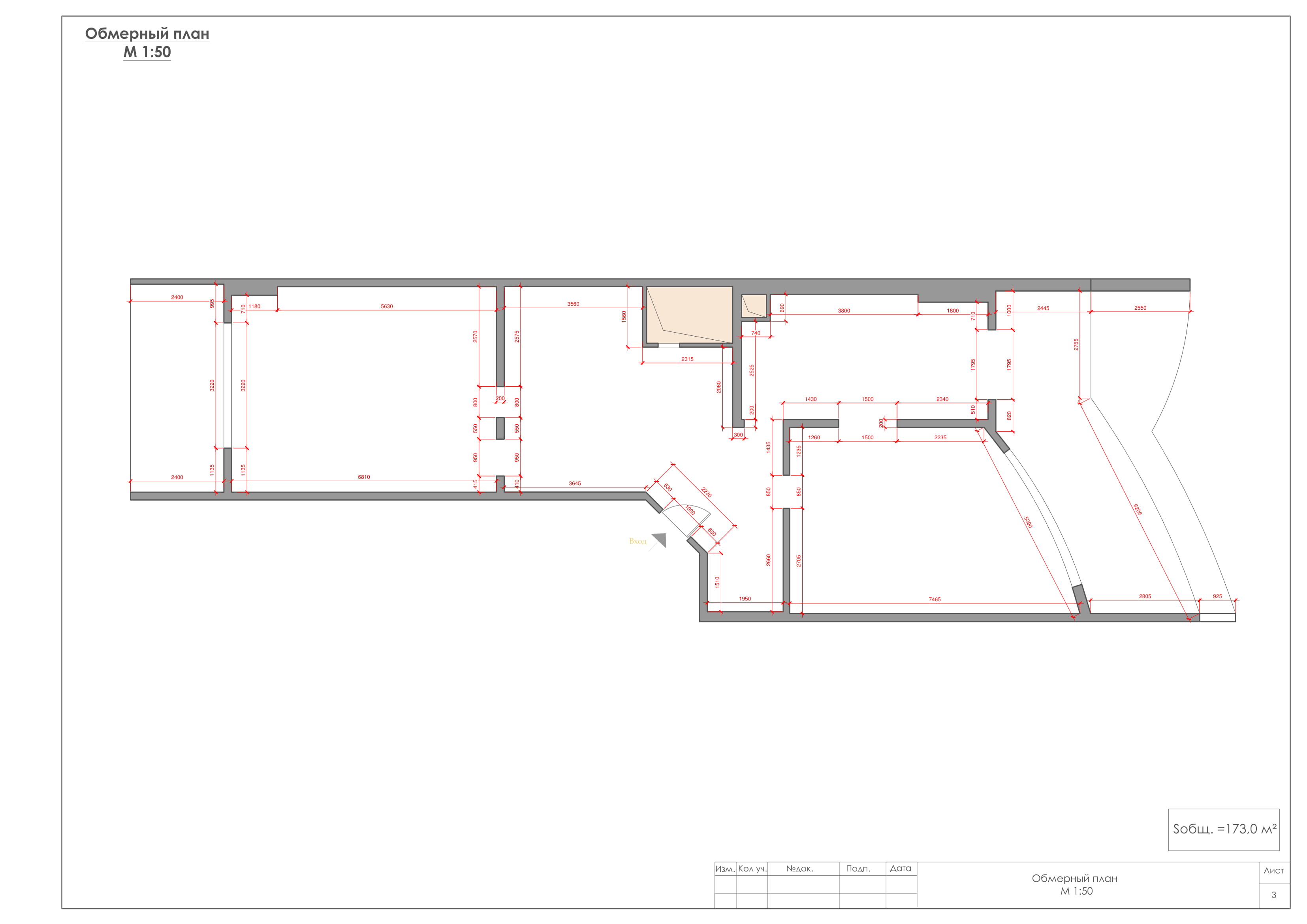
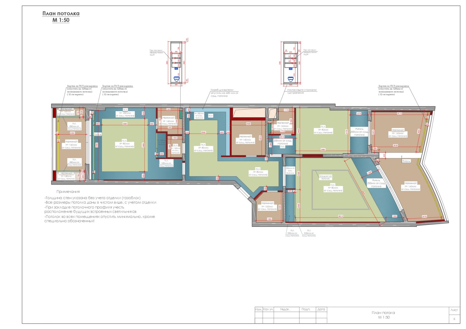
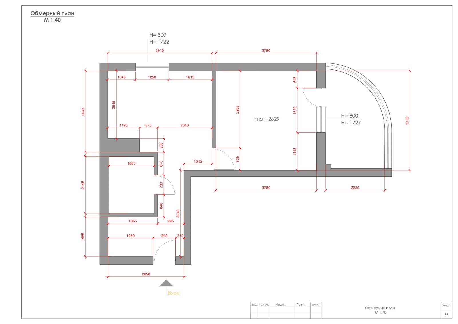
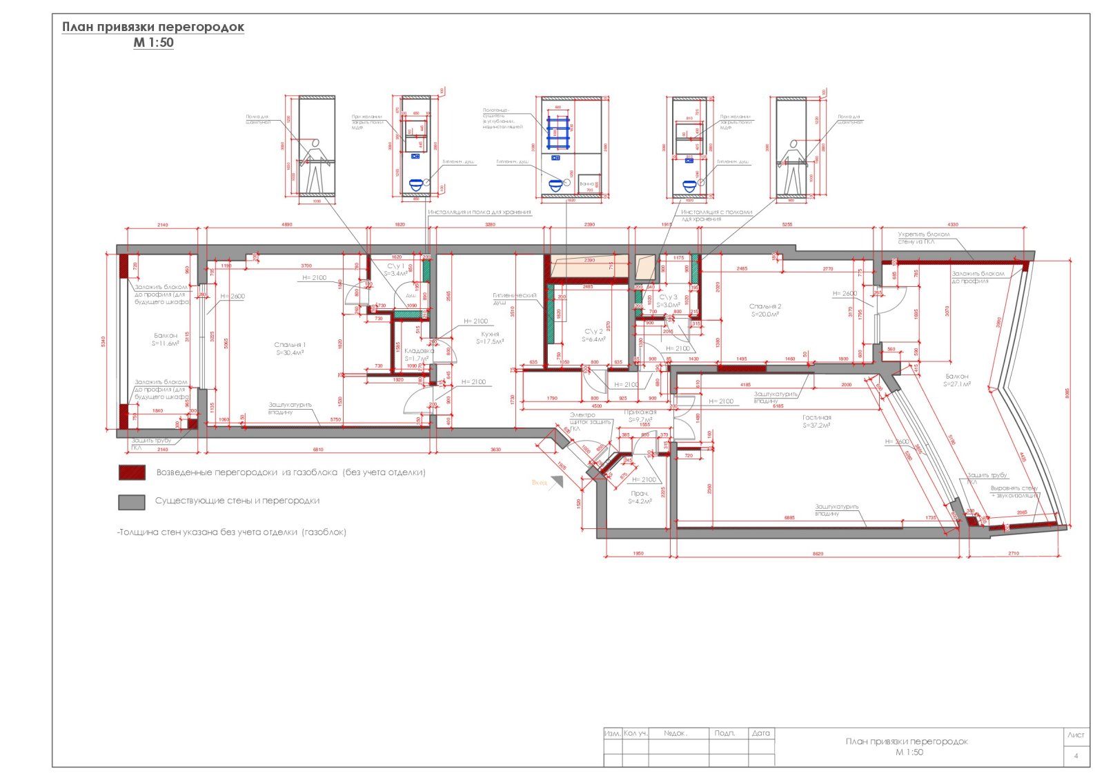
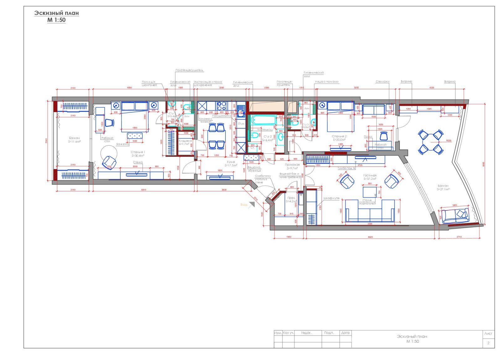
создание чертежей и схем, по которым будут проводиться работы
использование дизайн-проектов позволяет быстро и качественно отделать свою квартиру, при этом создать в ней неповторимый стиль и дизайн помещений